Neubau Mietwohnungen, Reutlingen
Entstehung eines Quartiers aus drei neuen Mietwohngebäude, Spiel- und Quartiersplatz und Tiefgarage
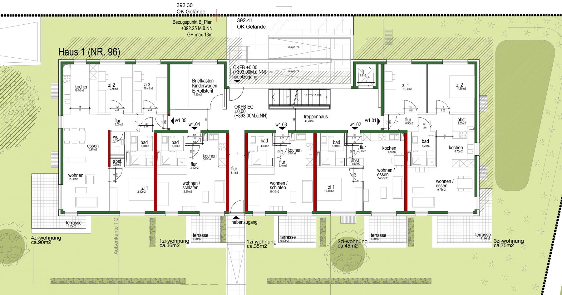
Projektbeschreibung
Die Umsetzung der „maßvollen städtebaulichen Dichte“ und Erhaltung des Gartenstadtcharakters wird durch 3 um einen gemeinschaftlichen geschützten Grünraum gruppierte Gebäude erreicht. Sie vermitteln in Stellung und Höhe der Baukörper zwischen den 4 und 2-geschossigen Bestandgebäuden, bilden den Rücken der südlichen 2-geschossigen Zeilen, sind aber auch Vermittlungselement zu den Bestandsgeschossbauten.
Quartiersplatz und Spielplatz vernetzen die Wege und Freiräume des Bestandsquartiers mit dem Neuen – verzahnende Grün- und Freiräume verstärken die Bedeutung des generationsübergreifenden „allengerechten“ Wohnens, die für alle Bewohner einen Impuls und ein neues Nutzungsangebot eröffnen können.
Barrierefreie Zugänge zu den Gebäuden, direkte Zugänge zu den Erdgeschosswohnungen bei den Bestandszeilen, ohne an den anderen Wohnungen vorbei zu müssen und ein enges Netz an barrierefreien Wegen von der Heilbronner Strasse und vom Fußweg aus, schaffen für alle Altersgruppen sichere qualitätsvolle Begegnungs- und Bewegungsräume und ermöglichen die Durchquerung des Quartiers auch für die umliegenden Bewohner von Orschel-Hagen.
Die geforderten Wohnungstypen von 1 ZI – 4 ZI- Wohnungen sind in allen 3 Gebäuden gemischt. Mit 3 – 5 Wohnungen je Geschoss ist eine wirtschaftliche Erschließung über einen kurzen geschlossenen Laubengang auch bei kleinen Wohnungen möglich.
Projektdaten
Standort: Reutlingen, Orchel-Hagen
Fertigstellung: 2018
Bauherr: GWG Wohnungsgesellschaft Reutlingen mbH
Leistungsphasen (HOAI): 1-9








